WEB予約で最大10,000円のAmazonギフトカードプレゼント
ユースタイルハウスの家づくりを体験
モデルハウス・ショールーム見学
ESTATE
不動産情報
大塚町鎌倉 戸建賃貸
平成元年建築 賃貸戸建住宅!
入居者募集中です!
◆外観



<おすすめポイント>
・洋室2部屋、和室3部屋とゆとりある部屋数の2階建て5LDK賃貸住宅
・お庭と駐車スペース2台あり、更に駐車スペースはカーポート付き
・急な雨も安心!洗濯物を干せるテラス有り
・南向きで日当たり良しの賃貸住宅でゆったり戸建ライフ
・国道247号線へのアクセス良好でお出かけに便利
◆内観









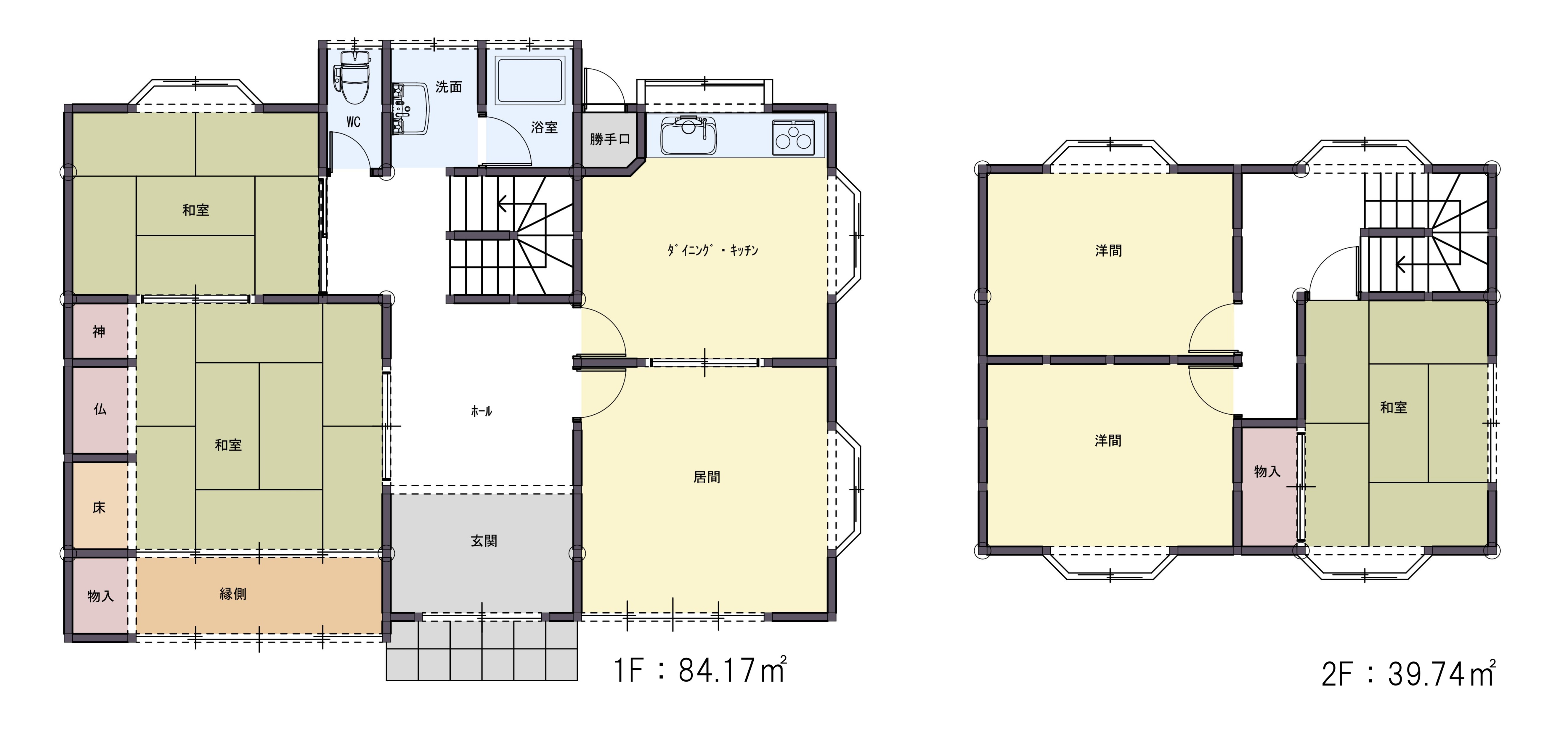
◆間取り図

※図面・設備は参考のため実際とは異なる場合があります。現況優先となります。
<物件の特徴>
・昔ながらのお家でノスタルジックな雰囲気の2階建て5LDK戸建住宅です
・お庭や駐車場スペース2台もあるのでゆったりした間取り
・小学校まで徒歩約3分、中学校は徒歩約8分の距離
・最寄りの駅まで徒歩約10分、コンビニやゲンキーも近傍で便利な立地です。
内装は和室・洋室ともに落ち着いた雰囲気となっています
—————————
物件概要
—————————
物件所在地:蒲郡市大塚町鎌倉
延床面積:123.91㎡(37.48坪)
間取り:5LDK
賃料:8.5万円
礼金:1ヶ月
敷金:なし 保証金:なし
現況:築37年
賃貸保証:加入必須
交通:JR東海道本線 「三河大塚駅」 徒歩 約10分
学区:大塚小学校・大塚中学校
その他詳細はお問合せ下さい
大塚町で【賃貸戸建住宅】をお探しの方!
お電話又は下記お問い合わせフォームにてお気軽にお問合せ下さい♪
お問合せフォームの備考欄に「大塚町の戸建賃貸について」とお入れください。